: 3
: 3
: Zabbar
Lift
Shell Form
Open Plan
Freehold
Front Terrace
Back Terrace
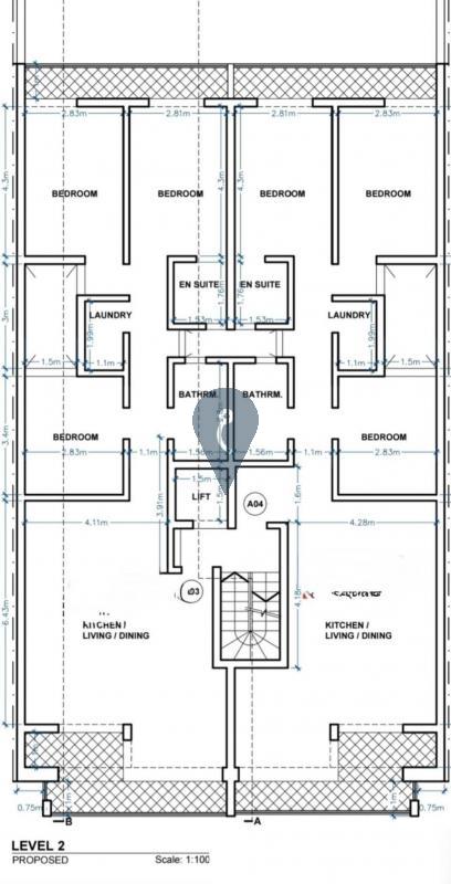
ŻABBAR – New Development
Second-floor apartment forming part of a new block of only five units, situated in a quiet residential area of Żabbar.
The property comprises a spacious open-plan kitchen/living/dining area, a separate laundry room, three bedrooms, and three bathrooms, two of which are en-suite. The apartment also enjoys both front and back terraces, providing ample outdoor space.
The property is being offered in shell form and is freehold.
