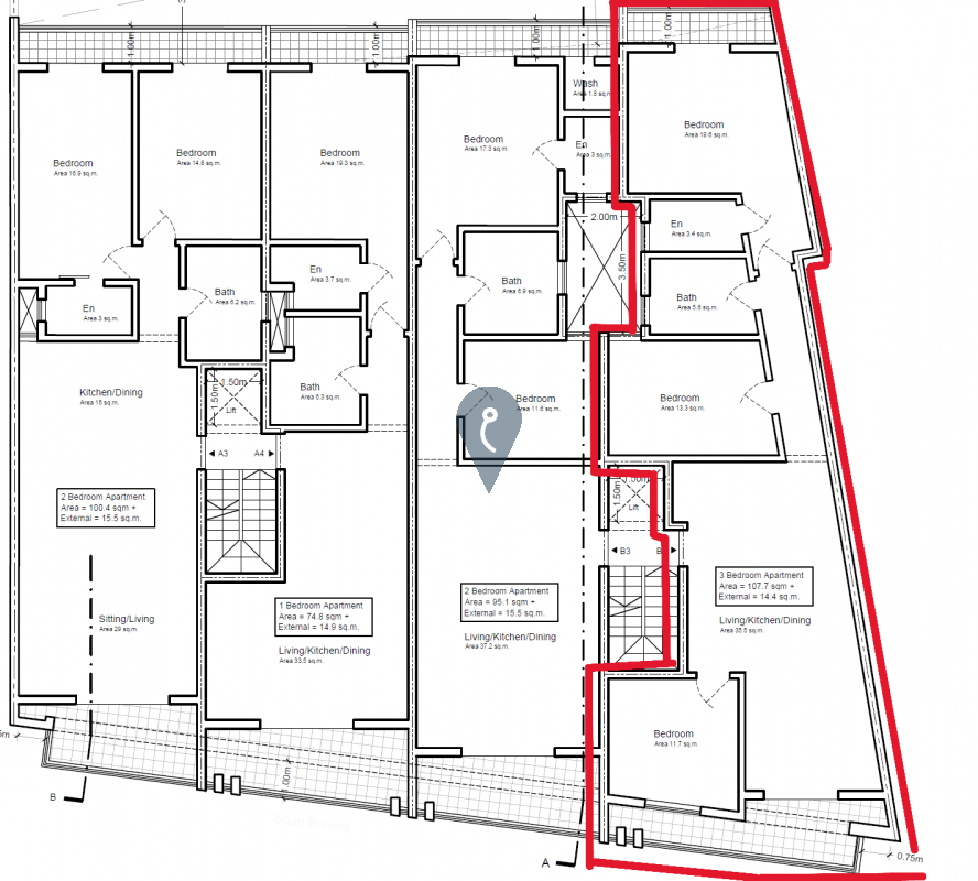
Situated in a quiet yet central area of Żabbar, this third -floor three-bedroom apartment forms part of a modern residential development currently under construction, with completion expected by the end of 2026.
The apartment features a spacious open-plan kitchen, living, and dining area leading onto a front terrace, ideal for family living and entertaining. The layout includes three bedrooms and two bathrooms, offering comfort and practicality for everyday use.
A back balcony further complements the property, providing additional outdoor space and natural light.
The apartment is being sold finished, excluding bathrooms and internal doors, allowing buyers the opportunity to personalise the final finishes according to their preferences.


