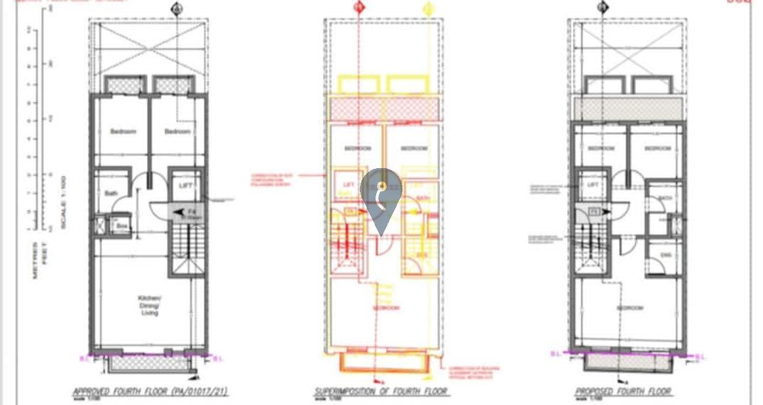
The fourth floor and fifth floor is arranged as a residential level organized around a central circulation core containing the stairwell and lift. The layout provides a functional separation between private and service areas while maintaining efficient access throughout the floor.
At the front of the floor, the approved layout shows an open-plan kitchen, dining, and living area, benefiting from direct natural light and opening onto a front balcony. This space is designed as the main communal area of the floor.
Moving inward, the staircase and lift are centrally positioned, providing vertical circulation to the other levels of the building. Adjacent to this core are the bathroom facilities and service spaces, including a main bathroom and lift lobby.
Towards the rear of the floor, the plan accommodates three bedrooms, both of which are proportioned for comfortable residential use and have access to natural light. In the proposed scheme, internal reconfigurations adjust room layouts and circulation, with one bedroom benefiting from an en-suite bathroom, improving privacy and functionality.
The drawings also illustrate a comparison between the approved, superimposed, and proposed fourth-floor layouts, highlighting areas of demolition and new construction. These changes primarily refine internal partitions, bathroom layouts, and bedroom arrangements while retaining the overall footprint and structural envelope.
Overall, the fourth floor is designed as a well-organized residential level with modern living spaces, efficient circulation, and improved bedroom amenities.

