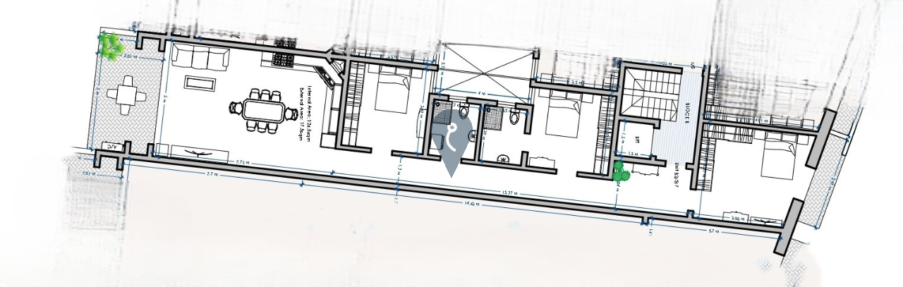
GHAJNSIELEM - A brand-new development in this sought-after quiet village, close to Mgarr Harbour. This third-floor apartment is being offered on plan (currently under construction) and will be delivered in shell form towards the end of August 2026, with all common parts finished. The property consists of a hallway, three bedrooms, two bathrooms, kitchen/living/dining room. This property commands beautiful Channel views from its front terrace. The apartment is ideal as a holiday home or a rental investment. Optional garages are also available.


