: 1
: 1
: Marsa
Town View
Airspace
Freehold
Unconverted
Whole Roof
Washroom
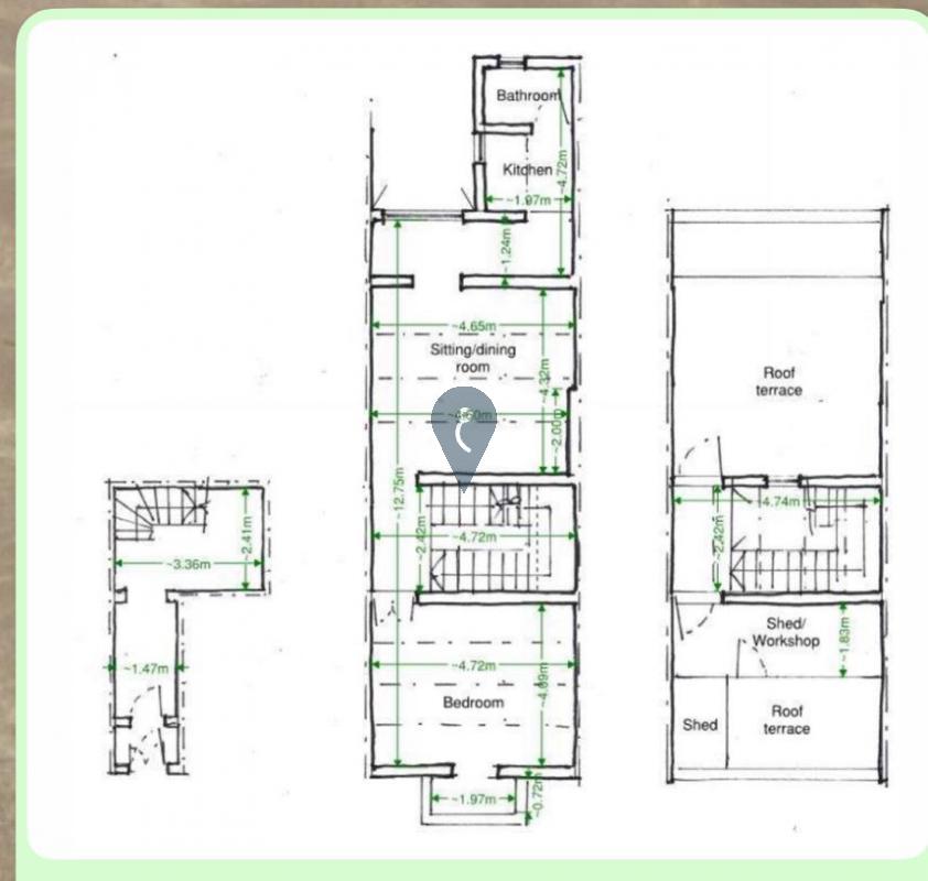
MARSA - Just listed an unconverted older type first-floor maisonette with airspace walking distance from all daily needs. This property consists of one large double bedroom, a main bathroom, a kitchen with a separate living/dining area, a good-sized washroom combined with two roof terraces, and a tool room. Contact your agent for viewing. It's being offered as Freehold.

