: 3
: 2
: Naxxar
Balcony
Town View
Open Plan
Semi Finished
B - Modern
garageOptional
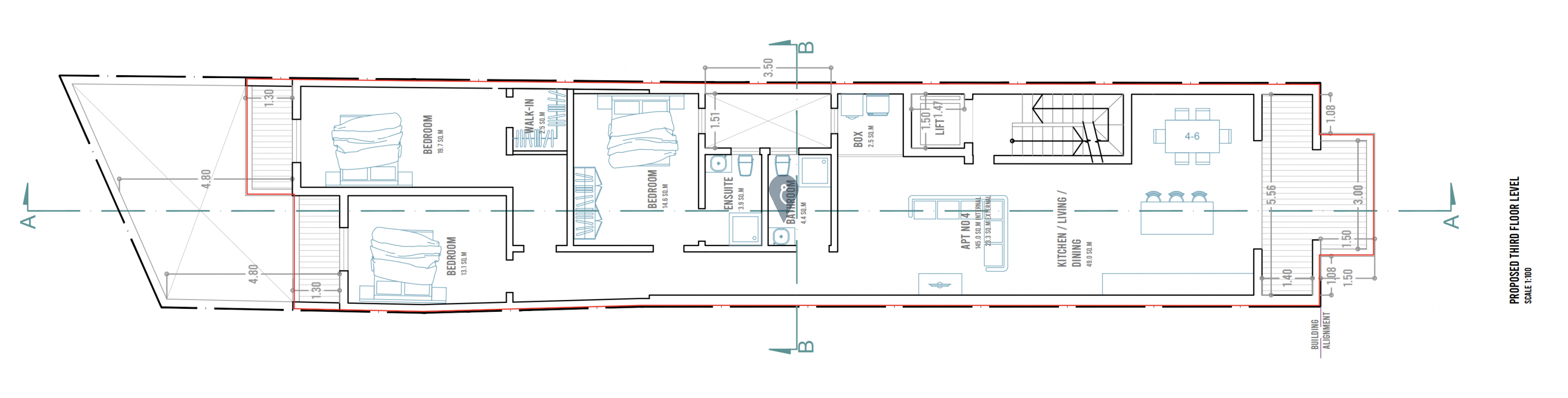
NAXXAR - Spacious, centrally located apartment just steps from the main church, offering three double bedrooms, including a main bedroom with en-suite, a box room, a main bathroom, a front balcony, and two peaceful rear balconies. Perfect for comfortable modern living. Being offered semi-finished (excluding bathrooms and internal doors). Optional garages are also available. Contact your agent to book your viewings.

