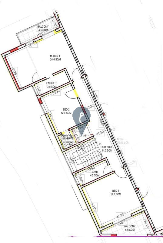
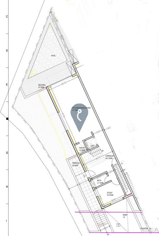
LIJA - A beautifully designed villa in Lija set on a generous plot of approximately 263 sqm, offering a total built-up area of circa 366 sqm and enjoying around 180 sqm of outdoor space. This spacious home features a large open-plan living area complemented by a separate kitchen, seamlessly connecting to an expansive outdoor area with pool and decking—perfect for entertaining. The layout includes three well-sized bedrooms, including a master with an en-suite, additional bathrooms, a study, and ample storage throughout. At roof level, one finds a washroom and extensive roof terraces ideal for relaxation. The property is further enhanced by a sizeable basement level with garage, storage, and an underlying reservoir, combining practicality with comfort to create an exceptional family home in a sought-after residential area.
