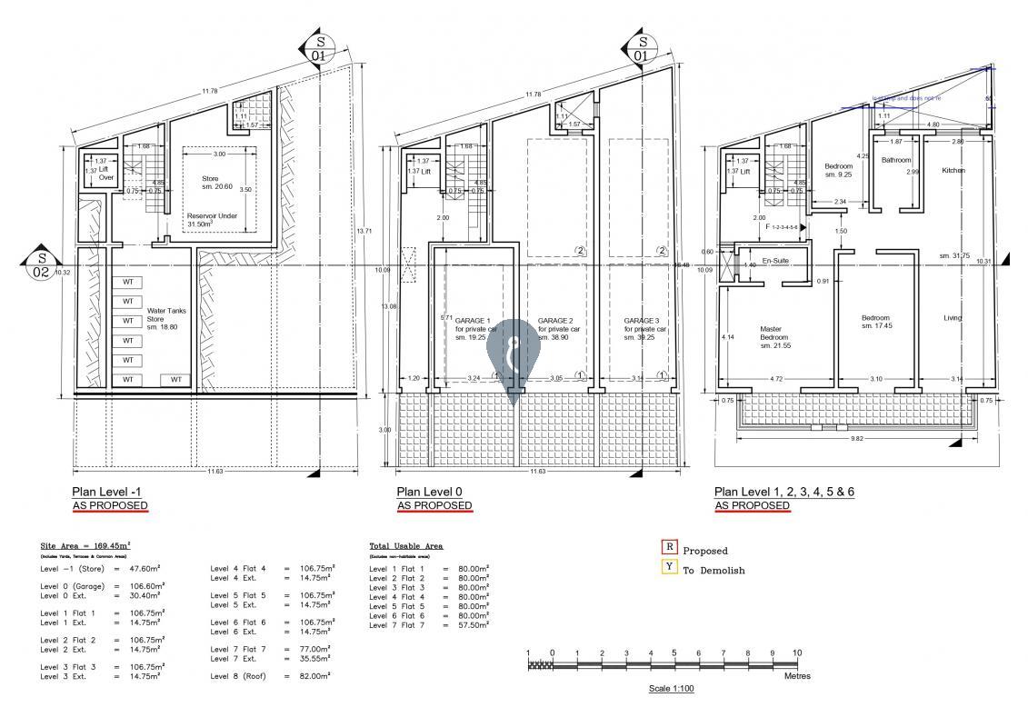
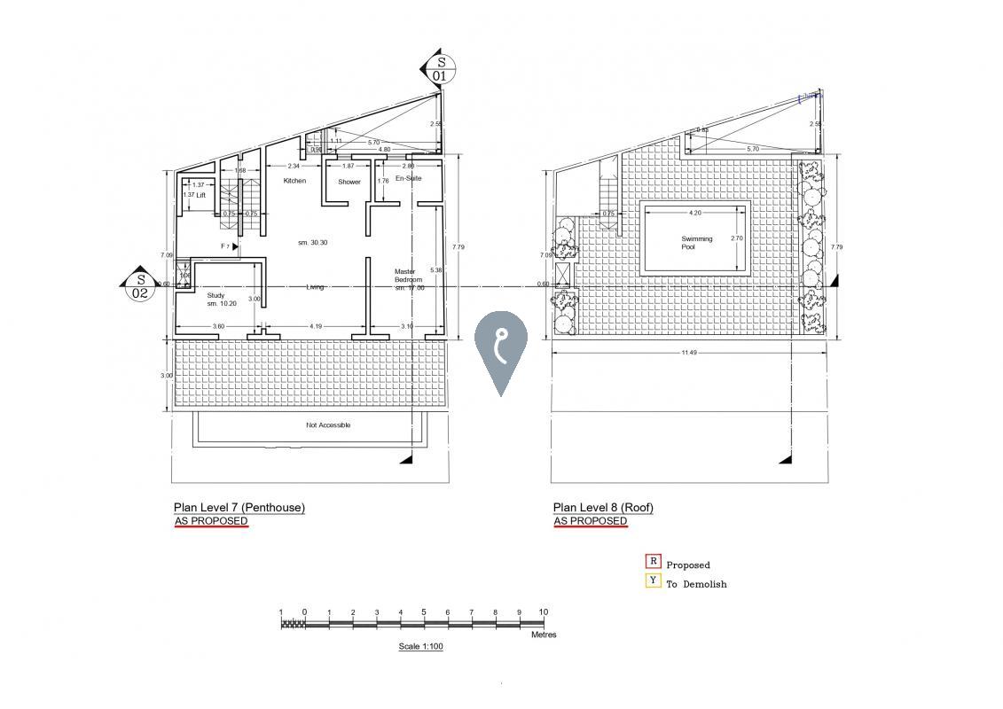
ST. PAUL'S BAY - Here, this new residential block will offer seven three-bedroom apartments and one one-bedroom penthouse with a study. Units will be finished with polished gres floor tiles and skirting, white-painted interiors, and white aluminum double-glazed apertures. Bathrooms include a €1,000 budget each for tiles and standard installations, while interior doors carry a €650 budget per door, including installation.
Each property will feature an intercom with a camera, AAA+ inverter air conditioners with Wi-Fi in the bedrooms and open-plan area, and a 300-litre roof water tank. Electrical layouts provide 48 points for three-bedroom units and 40 points for smaller layouts, including A/C and telephone points in the bedrooms and living area. The exterior will be completed with a Travertine façade, along with full plumbing and electrical installations.
The block includes a common lift and individual letter boxes.
Electricity and water meters are to be paid for by the buyer.
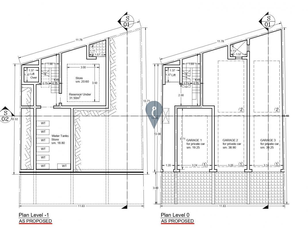
One optional one-car garage and two optional two-car garages will also be available.
The project is estimated to be complete by December 2026.

