Located in one of Birkirkara's premier residential areas, just a short walk from Smart Supermarket and all daily amenities, this new development offers modern, centrally located homes designed with accessibility in mind. All units are wheelchair-friendly, featuring practical layouts and step-free access, and are being offered fully finished, excluding internal doors and bathrooms, allowing buyers to customize the final touches to their preference. Optional lock-up garages are also available, making this an ideal choice for both homeowners and investors seeking quality, convenience, and comfort in a sought-after area.
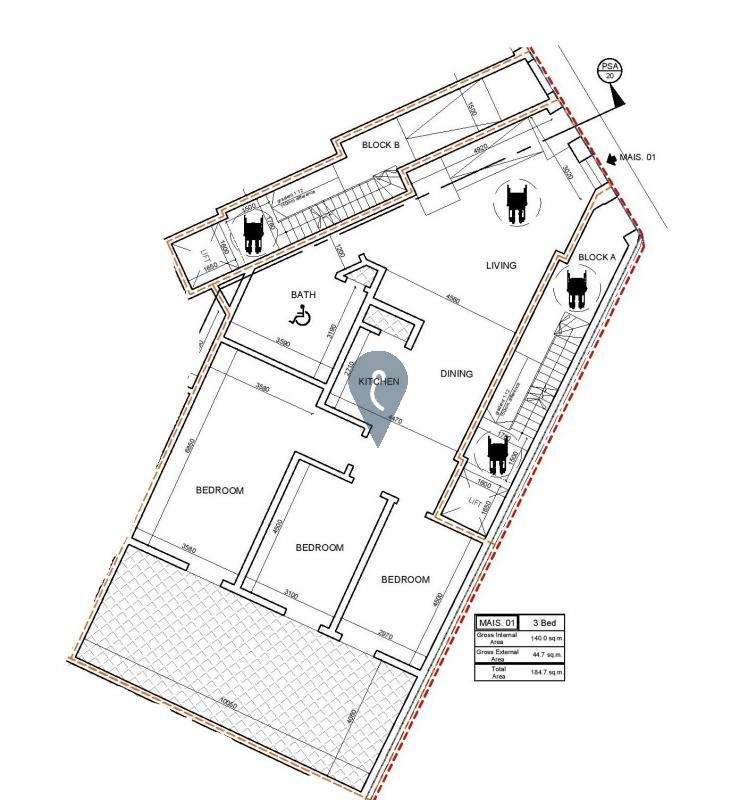
This spacious ground-floor maisonette offers a well-planned open-plan kitchen, living and dining area, three bedrooms, and a main bathroom. A private backyard provides valuable outdoor space, while the step-free layout and generous proportions make it suitable for use by people with disabilities. Optional garages are available for added convenience.


