QALA, Gozo - Nestled on the edge of Qala, along the scenic route to the stunning Hondoq ir-Rummien beach, this newly developed project seamlessly blends luxurious living with innovative sustainability. It presents an exclusive chance to secure a home that is both extraordinary and designed for the future.
This intimate boutique development features just ten units with breathtaking views of Comino and Cominotto—known locally as the 'Kmiemem'. Designed for discerning buyers seeking something truly distinctive, this project delivers everything the most exacting homeowner could desire. Beyond the spectacular vistas, generous layouts, and expansive terraces, the development incorporates a comprehensive Zero Package—engineered for zero carbon emissions and maximum water efficiency. This package includes:
Sustainability Features (Included in Price):
- Dedicated photovoltaic panels for each residence and common areas
- Premium insulation and double glazing throughout
- Energy-efficient heat pump water heating systems
- Secondary plumbing infrastructure for water recycling
- Integrated drinking water filtration
- Built-in waste separation systems
- High-standard finishes including air-conditioning, false ceilings, and elegant interiors
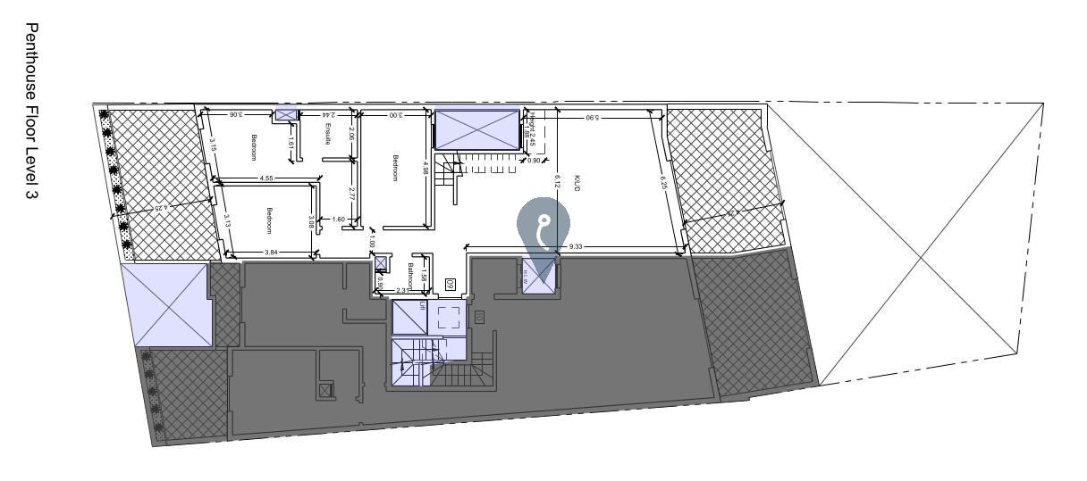
Third Floor Penthouse:
This stunning penthouse features an open-plan kitchen, dining, and living area that flows onto a spacious terrace overlooking the valley with sweeping country and sea views. The residence includes three bedrooms, two bathrooms, a front terrace, plus a private rooftop pool and deck area. Delivered fully finished to premium standards and accessible by lift. Optional fully finished garages available at the basement level. Freehold.

