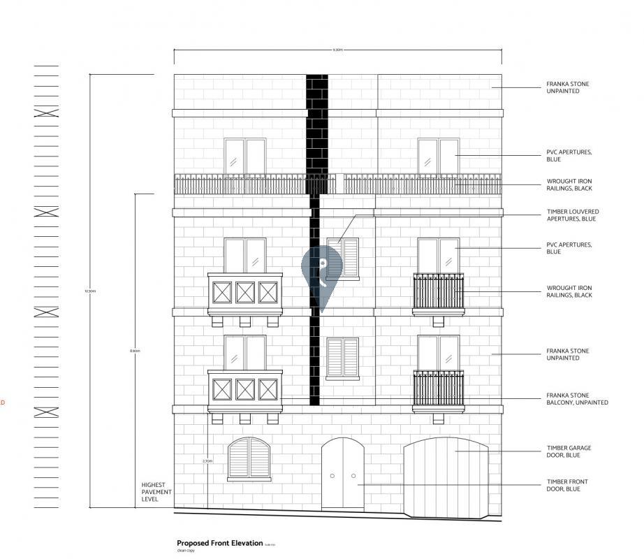
SAN LAWRENZ, Gozo: Nestled in the tranquil village of San Lawrenz, Gozo, this exclusive new development comprises just seven thoughtfully designed units, each benefiting from a shared communal pool and garden area. The property boasts stunning country views overlooking ODZ-protected land from the rear, ensuring uninterrupted natural vistas. This spacious ground-floor apartment features a bright, open-plan kitchen, dining, and living area that flows seamlessly onto a generous back yard, perfectly positioned to overlook the inviting communal pool and lush garden. The accommodation includes three well-proportioned bedrooms, two of which enjoy the luxury of ensuite bathrooms, along with a main bathroom, a practical washroom, and an internal yard for added convenience. The property is being offered in advanced shell form, complete with apertures and tiled yard areas, while all common parts are finished to a high standard and the development is served by a lift for easy access. Optional garages are available at the basement level for those requiring secure parking, and a comprehensive finishing package can be arranged upon request. The property is offered as freehold, providing full ownership and long-term security.

