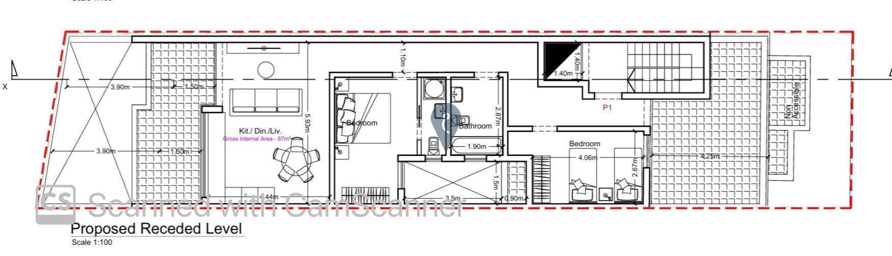
MELLIEHA - Here comes this new sea view development, currently under construction and set to be completed by December 2026. The block consists of two large garages of around 170 sqm each at basement level, a three-bedroom ground-floor maisonette with a yard, three-bedroom apartments on the first, second, and third floors, and a two-bedroom penthouse at the top.
All units will be delivered fully finished, including bathrooms and internal doors, making this a complete, ready-to-move-into project upon completion.


