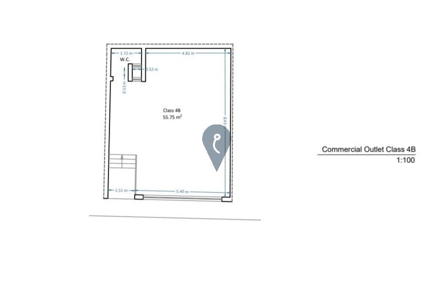
QORMI - CLASS 4B - Prime corner office/shop/showroom with a great street view.
Three-phase electricity and water meter installed. This space offers a fantastic street view and is tailored for office/shop/showroom use, making it a versatile choice for businesses seeking a dynamic and engaging work environment. The layout allows for flexible configurations, catering to various professional needs. The expansive windows provide an abundance of natural light, creating an inviting atmosphere for both customers and employees. The strategic placement ensures maximum exposure, making it an ideal spot for a showroom that seeks to make a lasting impression.
Whether you're looking to establish a showroom that stands out or create a vibrant office space with a view, this corner property offers a unique opportunity to elevate your business presence.
