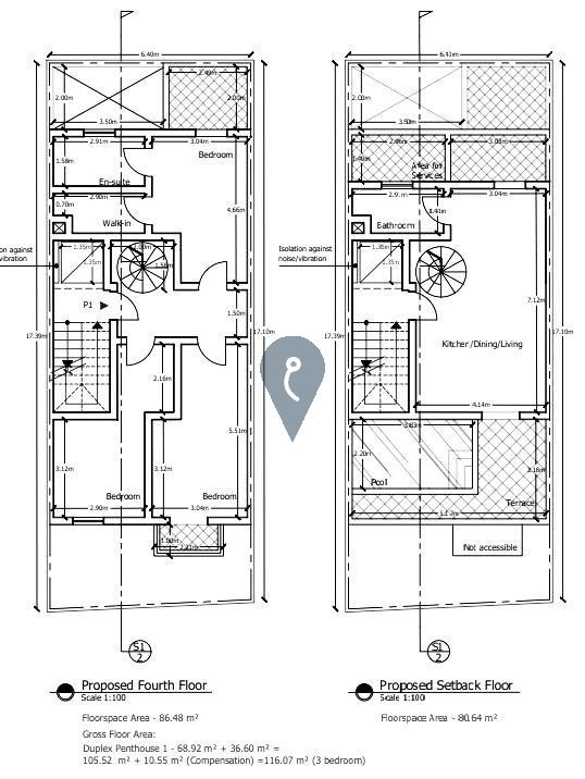
New on the market is this exclusive development of just four units, located on the outskirts of Ħamrun—an area in high demand. This duplex penthouse offers a well-designed layout, maximizing both indoor and outdoor space for comfortable living.
The first level features three bedrooms, including a main bedroom with an en-suite and a walk-in wardrobe. Both front and back balconies provide ample natural light throughout. A stylish spiral staircase leads to the upper level, where you’ll find a spacious open-plan kitchen, living, and dining area, along with an additional bathroom. This floor is complemented by a generous front terrace, perfect for outdoor relaxation, and a large back balcony.
This penthouse is being offered in shell form, allowing you to personalize the finishes to your taste. The property is freehold, ensuring full ownership. An excellent opportunity for those seeking a unique home in a sought-after location.
