: 2
: 2
: Gozo - Qala
Lift
Garage
Shell Form
Open Plan
Freehold
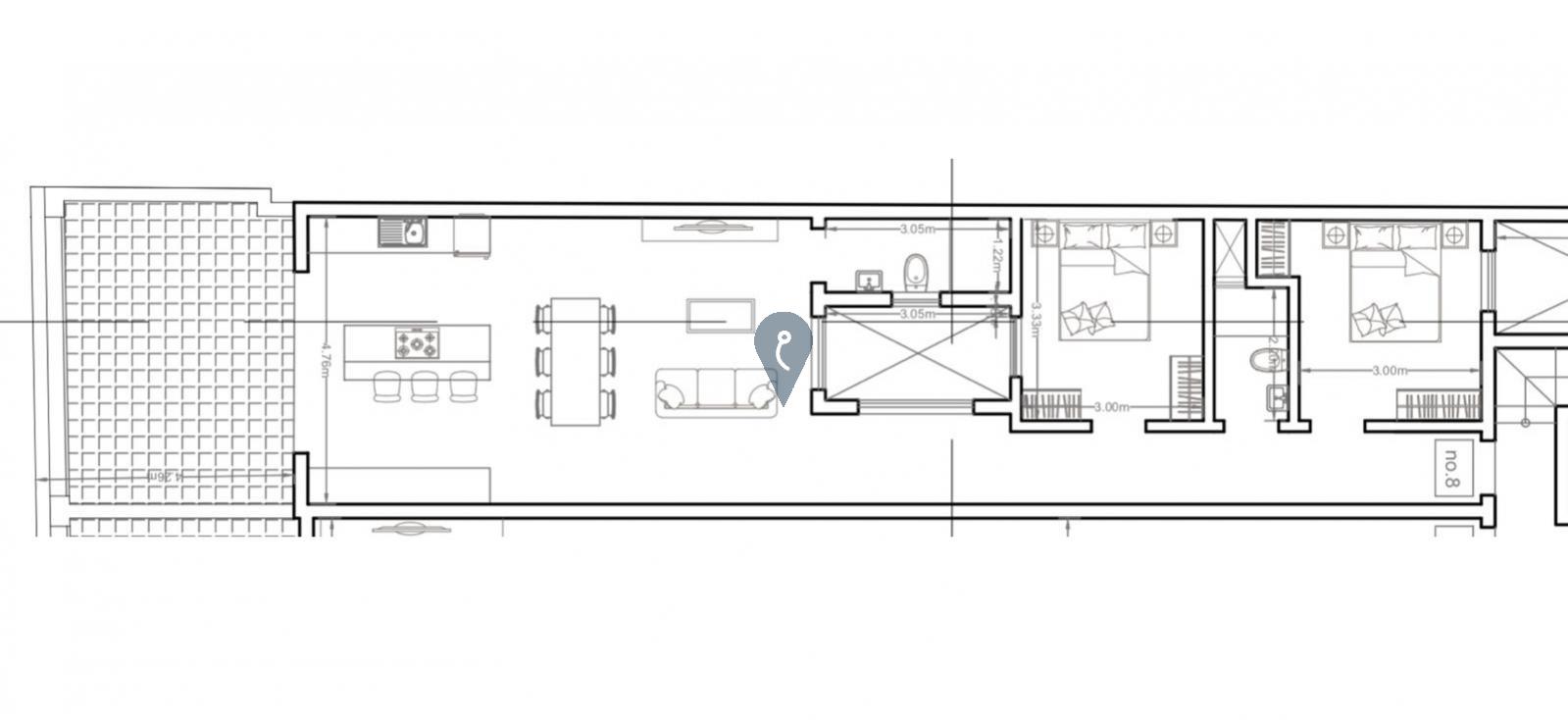
QALA, Gozo - New development in a quiet area of the village. First floor apartment comprising an open plan kitchen / dining / living area, three bedrooms, two bathrooms, box room, front balcony. Being offered in shell form with finished common parts and served with lift. Freehold. Optional garages at ground floor level. Finishing package on request.

