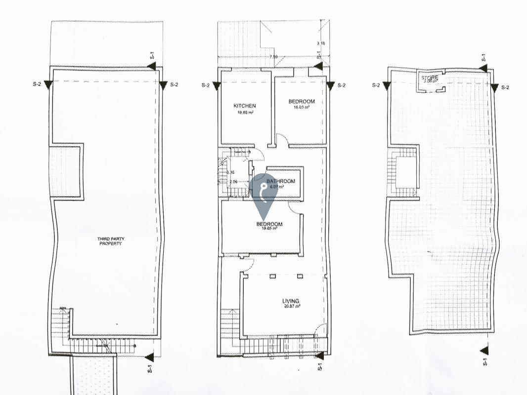
VICTORIA GOZO - Discover the perfect family home with this charming first-floor maisonette, nestled in the peaceful outskirts of the capital city. This unique property offers an incredible opportunity for expansion, as it includes its own airspace, allowing new owners to develop a second floor and transform it into a stunning duplex. Featuring a private entrance, the well-designed layout includes a spacious living area, a generous main bedroom, an additional double bedroom, a modern bathroom, and a fully equipped kitchen. As a freehold property, you’ll have complete ownership and flexibility. Enjoy the convenience of being just a stone's throw away from supermarkets, pharmacies, and all essential amenities, with the village core within walking distance. Don’t miss your chance to make this wonderful maisonette your new home!

