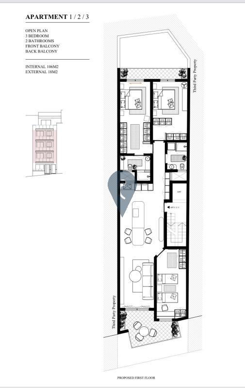
ZEBBIEGH - A first-floor apartment, forming part of a small block of five units. The property consists of a large open plan, Kitchen, living and dining, three bedrooms, a main with an ensuite, and another main bathroom. The property has a front terrace and also a back terrace. Served with Lift.
Underlying interconnected, Two-car garages are also available to purchase at an extra cost.
The property is being offered finished without bathrooms internal doors and freehold. This block will be finished by the end of the year (2025)
