:
: 2
: Birkirkara
Parking Space
Front Terrace
Furniture Included
Kitchen
Air Conditioning
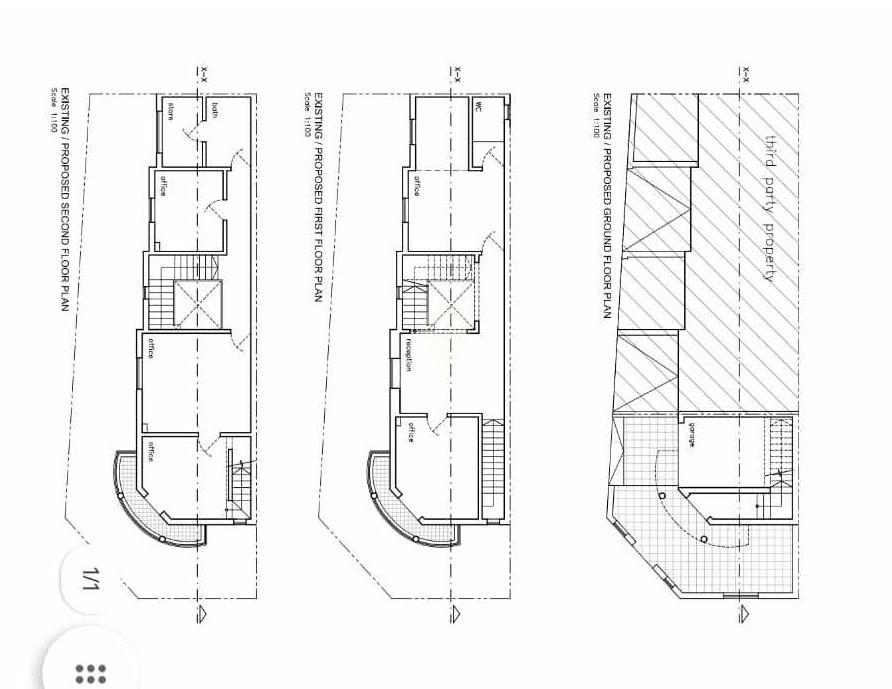
BIRKIRKARA - Excellent investment opportunity - A block of offices that can be easily converted into a Corner Duplex Solitary Maisonette.
Consisting of a street level garage, offices on the first and second floor level and a roof and washroom on the third floor. Full ownership of airspace with pointential to build further.
The property is in a very good condition and does not need any renovation.
