: 0
: 0
: Safi
Garage
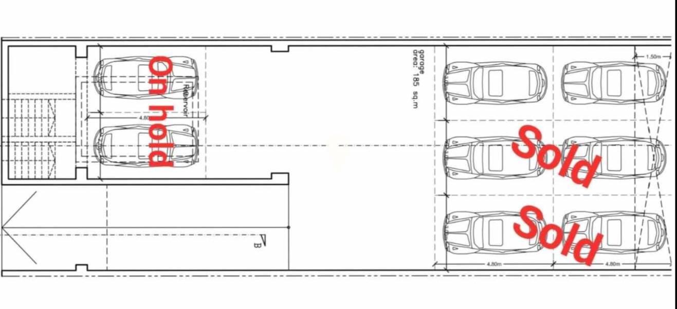
Grab this opportunity to obtain a Large five-car garage including a door in a quiet area in Safi. Size is185 sqm. A two-bedroom apartment is also available which is finished excluding the bathroom set and internal doors.
You might also like
€186,000
