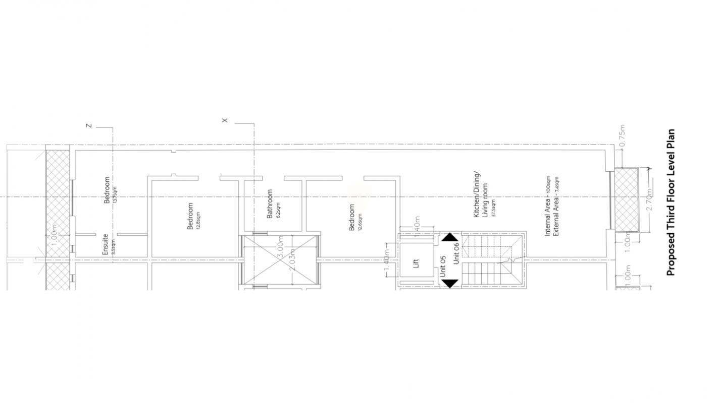
KERCEM - Gozo. Brand new development located in a serene and peaceful area of the village. This third-floor apartment is a perfect blend of modern design and tranquillity. Offering three bedrooms and two bathrooms, with one en-suite, this spacious apartment provides ample room for a comfortable lifestyle. The highlight of the property is the open living/kitchen/dining room, which creates a seamless and inviting space for relaxation and entertainment. The apartment also features front and back balconies, allowing you to enjoy the surrounding views and fresh air. The property is currently offered on-plan in shell form, providing you with the opportunity to customize and personalize it according to your taste and preferences. Common parts and a lift are already included in the price, ensuring convenience and accessibility. Whether you are looking for a great family home or a rental investment, this apartment offers the ideal opportunity to create the living space you desire in a tranquil setting.


