image

Birkirkara - Showrooms

€415,000
Available From:
03-05-2027
Ref No.:
60646
Type:
Showrooms
SQM:
150
Room:
5
Bathrooms:
3
:
: 3
: Birkirkara
Front Terrace

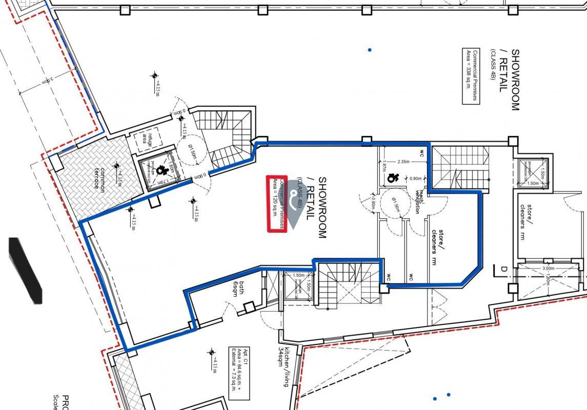
BIRKIRKARA | Class 4B showroom situated on the first floor and forms part of a large commercial and residential block with great exposure. Measuring circa 150 sqm and offered semi-finished in an open-plan layout. The project is being offered on plan and is expected to be complete by May 2027. Optional garages are available. Contact your agent for further information.