VICTORIA, Gozo - Located just minutes from all conveniences, yet tucked away in one of the most idyllic neighborhoods in the heart of Victoria, Gozo, this project features an iconic mixed-use-complex design granting its authenticity to future owners.
Spread over 5 levels, this development offers a selection of 1, 2 or 3 bedroom apartments, some of which look out onto spacious balconies and terraces, as well as penthouses housing landscaped roof areas with private pools. The Complex also features over 150 car spaces and basement parking garages, a commodity much sought after in the city.
Other astounding features include a 500 sqm private communal pool area as well as its own 1129 sqm of landscaped public pedestrian internal road. The use of refined materials will lend high-end external finishes, detailing true pride of ownership.
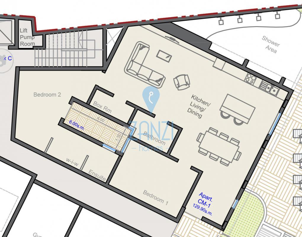
Ground floor maisonette comprising an open plan kitchen / dining / living room, two bedrooms, two bathrooms and a box room. Being offered in semi-finished state (including external apertures, front door, tiling of yard and water tank and other finishings) with finished common parts, swimming pool and gardens. Freehold. Optional garages at ground and basement levels. Finishing packages on request.

