: 0
: 0
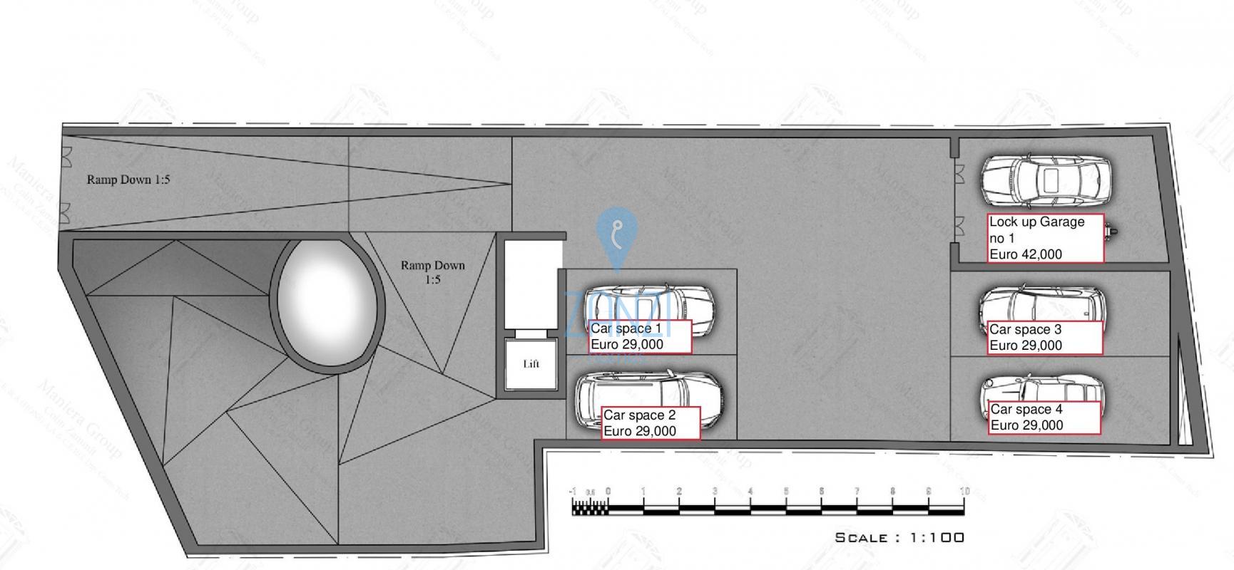
: Qawra
Lift
Garage
Basement
Freehold
Finished
QAWRA: One Car Lock Up Garage at Basement Level located in a block of Apartments just off Qawra Sea Front and in close proximity of the park.
FREEHOLD

