: 1
: 1
: Gzira
Balcony
Lift
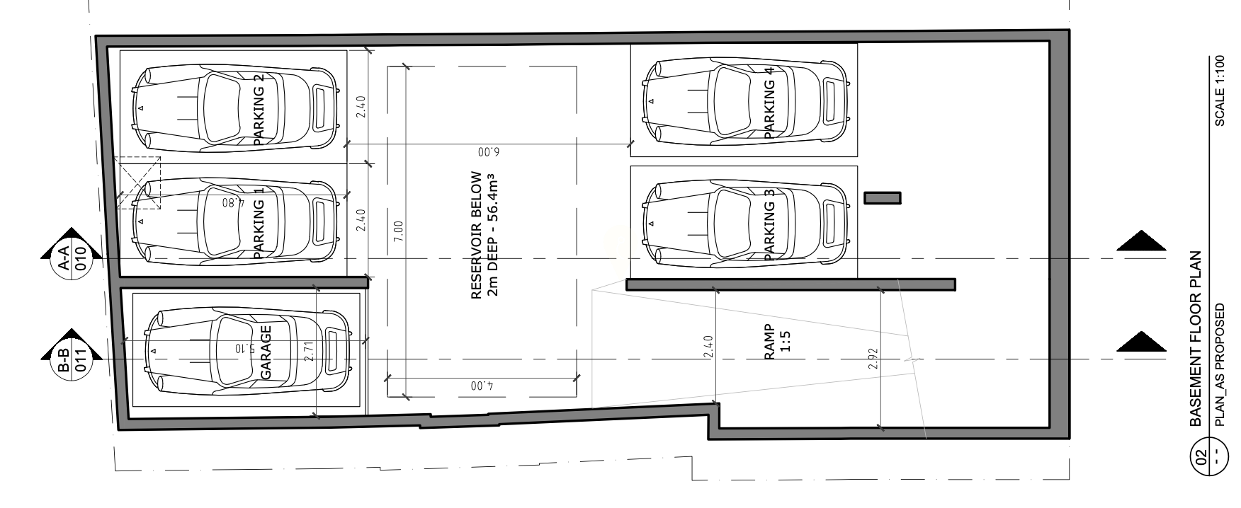
Parking Space
Town View
Open Plan
Semi Finished
Freehold
Finished
A - Ultra Modern
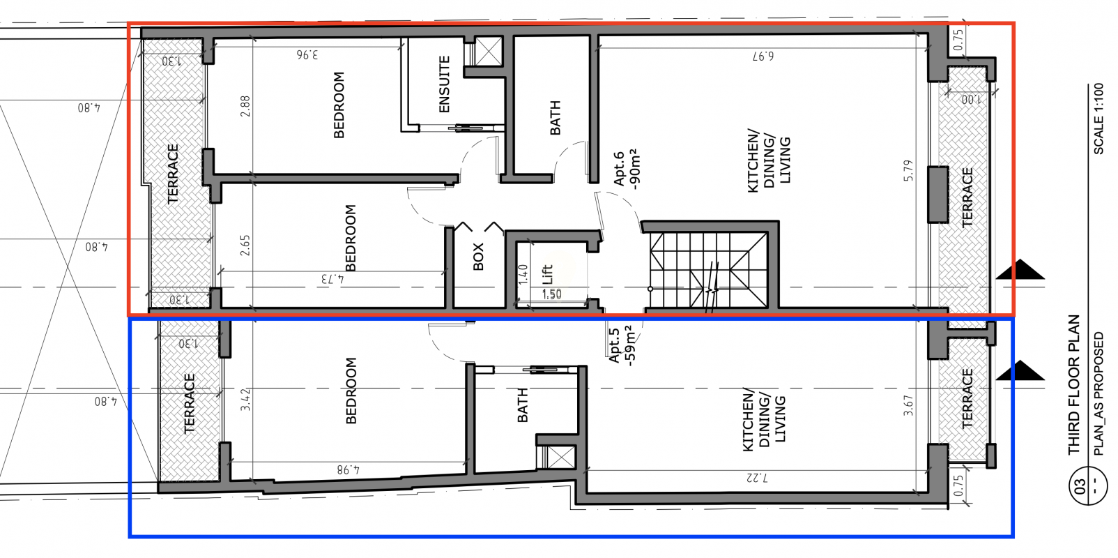
GZIRA - perfectly located in Gzira, close to all amenities one-bedroom apartment (marked in blue) on the third floor, being the fourth floor from the street level. The property comprises an open plan kitchen living dining, a main bedroom, a main with en-suite, a main bathroom, a front balcony, and a back balcony. This project is currently under construction, offering freehold and semi-finished, excluding bathrooms and internal doors. Optional car spaces are available at an additional price.


