FGURA – A BEAUTIFUL, THREE-BEDROOM TERRACED HOUSE WITH INTERCONNECTED 1+ CAR GARAGE
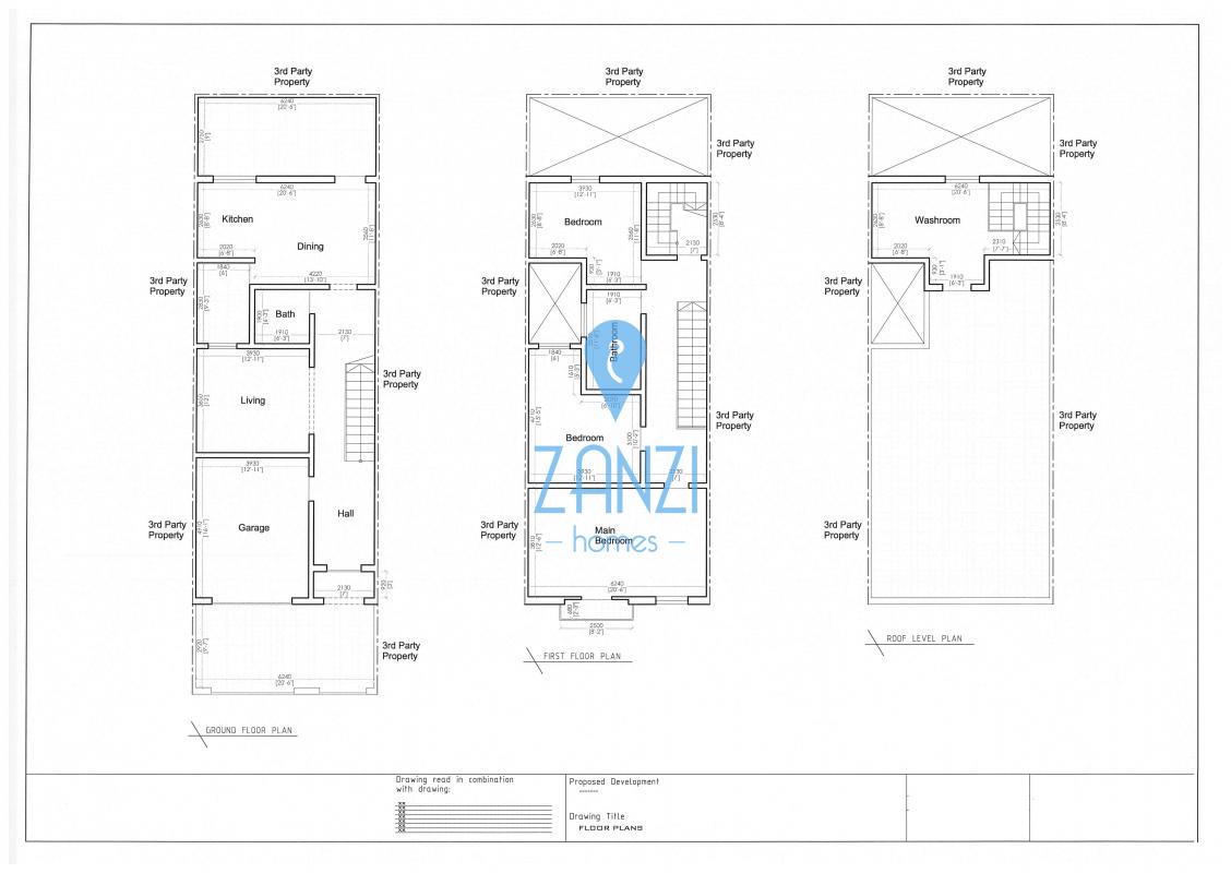
A nice porch gives access to the main entrance and the garage respectively. At ground floor level, this terraced house comprises a hallway that leads to a separate living room, a bathroom, and a large kitchen/dining room which leads to two yards – an internal yard and a large back yard. Going up to the first floor, one finds three very spacious, double bedrooms (main with a balcony and window overlooking the porch) and another guest bathroom. Finally, upon going up to the second floor one finds himself in a very well-sized washroom that leads to a large roof. The property is being offered fully furnished, freehold, and including airspace.
