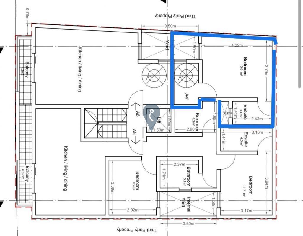
ZEJTUN - Located in the charming village of Żejtun, this well-designed duplex apartment is set on the first and second floors of a modern residential block, offering a comfortable layout ideal for both homeowners and investors alike. Positioned in a quiet area while still close to everyday amenities, the property blends practicality with the authentic character of this sought-after locality.
The apartment is spread over two levels, providing a clear separation between living and sleeping quarters. The lower level features a bright open-plan kitchen, living, and dining area, designed to maximise natural light and create a welcoming space for both relaxation and entertaining. The upper level comprises two well-sized bedrooms, offering comfortable accommodation along with space for storage, as well as the main bathroom.
Being offered finished excluding bathrooms and internal doors, this property presents an excellent opportunity for buyers to customise key finishing touches according to their personal taste and style. This flexibility allows you to create a home that truly reflects your preferences while benefiting from an already completed structural and finishing framework.
With its duplex layout, practical design, and desirable location in Żejtun—known for its traditional Maltese charm and community atmosphere—this apartment makes for an ideal residence or rental investment with strong potential.

