ZEBBUG - Situated in a sought-after residential area of Żebbuġ, Malta, this two-bedroom maisonette is being offered on plan, presenting an excellent opportunity to secure a new home in a tranquil and well-connected location.
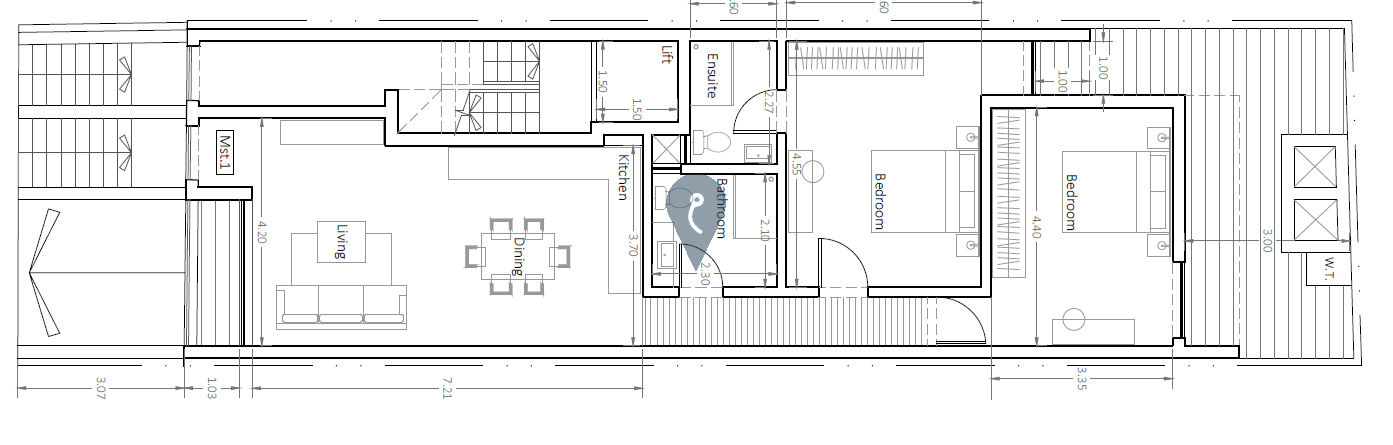
The property comprises a well-designed open-plan kitchen, living, and dining area, creating a comfortable and practical living space. The layout includes two bedrooms, with the main bedroom enjoying ensuite facilities, a main bathroom, and a separate pantry for added storage and convenience.
A yard further complements the property, providing valuable outdoor space ideal for relaxation or entertaining.
The maisonette is being offered finished, excluding bathrooms and internal doors, allowing buyers the flexibility to personalise the final finishes to their taste. Completion is scheduled for mid-2027.
Contact the agent for further information or to secure this property at an early stage.


