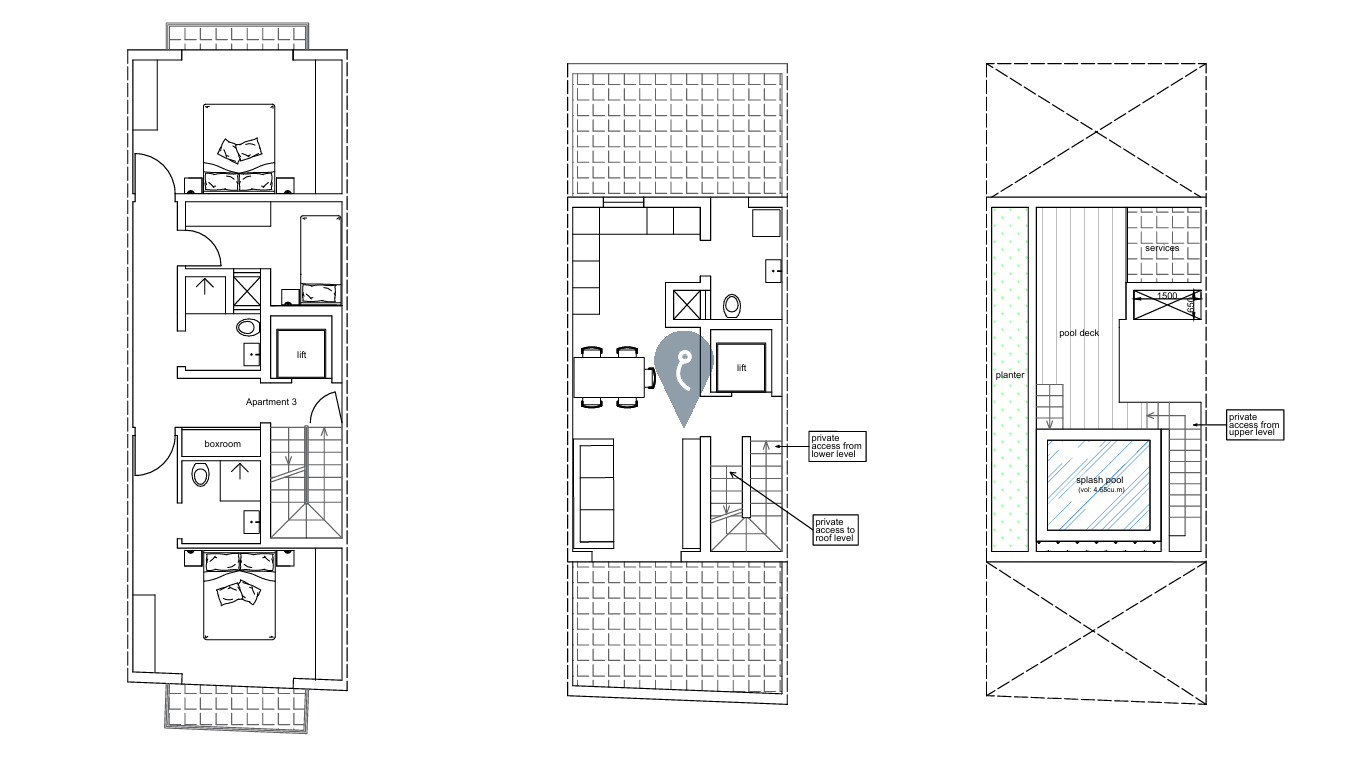
PAOLA - This generously sized third-fourth-floor duplex penthouse offers exceptional living space and a smart, well-planned layout. The property features front and back balconies, as well as a private roof garden, providing abundant natural light and inviting outdoor areas throughout the day.
Designed for modern living, it includes two spacious bedrooms and a separate games room, offering flexible space perfect for working from home, entertaining, or comfortable family life.
An excellent off-plan investment opportunity, with completion scheduled for the end of 2026. Secure today’s price and benefit from strong future growth potential.
All units are offered fully finished, including three bathrooms and internal doors, ensuring a high-quality, move-in-ready standard.


