QALA, Gozo - Tucked away in a quiet private alley, this newly built rustic-style House of Character in Qala, located within a UCA (Urban Conservation Area), offers the perfect blend of traditional charm and modern comfort, finished and furnished to a high standard throughout.
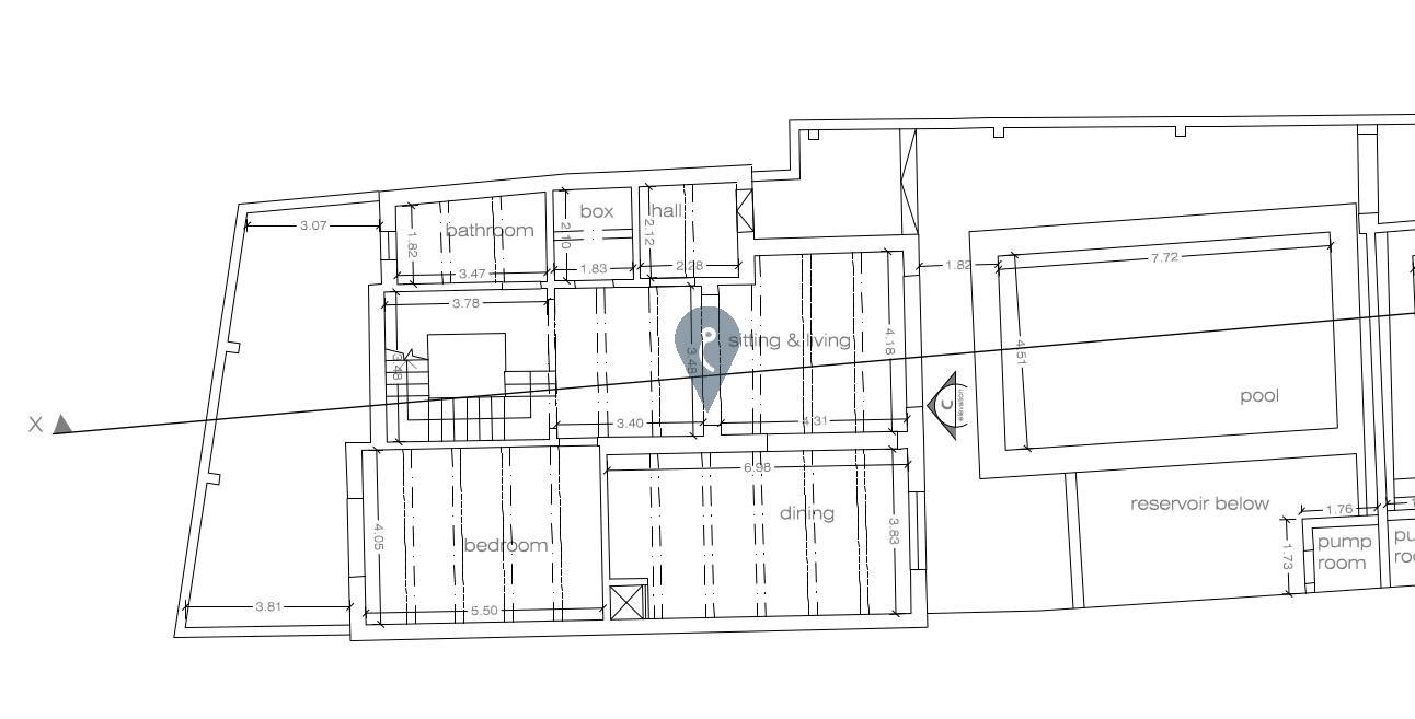
Upon entering, you’re welcomed into a bright open-plan kitchen/dining/living area, enjoying direct views and access to the large private swimming pool and surrounding deck area, ideal for entertaining and relaxed outdoor living. The ground floor also includes a bedroom, a main bathroom, and a backyard with a garden, adding even more outdoor space to enjoy.
On the first floor, one finds three bedrooms, each with its own en-suite bathroom, offering excellent privacy and comfort for family and guests alike. The second floor features a further bedroom with an en-suite, complemented by a spacious wrap-around terrace, perfect for sunbathing, dining al fresco, or simply enjoying the peaceful surroundings.
This property is being offered finished and partly furnished, equipped with all modern amenities, and is Freehold, a rare opportunity in one of Gozo’s most sought-after villages.
Ideal as a luxury family home, holiday residence, or high-end rental investment.

