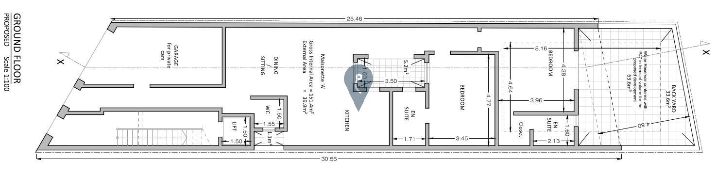
ZEBBUG, Gozo - Located in a sought-after residential area of Zebbug, Gozo, just moments from the scenic cliff edge, this ground-floor maisonette offers a fantastic opportunity for comfortable and contemporary living. The well-planned layout features an open plan kitchen, dining, and living area—perfect for both relaxing and entertaining. Both bedrooms are equipped with their own ensuite bathrooms for privacy and convenience, complemented by a separate guest toilet. The property also includes an internal yard for natural light and ventilation, and a large back yard ideal for outdoor enjoyment or gardening. Adding to its appeal, the maisonette comes with a street-level, interconnected one-car garage, providing secure and direct access to your home. Being offered in shell form, you have the freedom to finish the interiors to your personal taste, and the property is freehold, ensuring full ownership. This is an excellent choice for those seeking a peaceful setting, modern comfort, and the practicality of private parking in one of Gozo’s most desirable locations.

