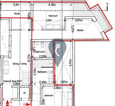
SAN GWANN – Brand New second-Floor Apartment in Prime Location - An excellent opportunity to acquire a brand new second-floor apartment in one of San Gwann’s most sought-after areas. Spanning approximately 78 SQM, the property features a square layout and a bright open-plan kitchen, living, and dining area leading to a spacious front terrace. The apartment offers one double bedroom, complete with walk-in wardrobes and an en-suite bathroom, combining comfort with convenience and a guest bathroom. Being offered in shell form, with the option to have it fully finished at an additional cost. This property is freehold and ideal for first-time buyers or as a rental investment. Construction is expected to be in shell form by January 2026, with full completion by August 2026. Contact us for more information or viewings.

