image

Valletta - Offices

€478,000
Available From:
Available
Ref No.:
82671
Type:
Offices
SQM:
57
Room:
5
Bathrooms:
1
:
: 1
: Valletta

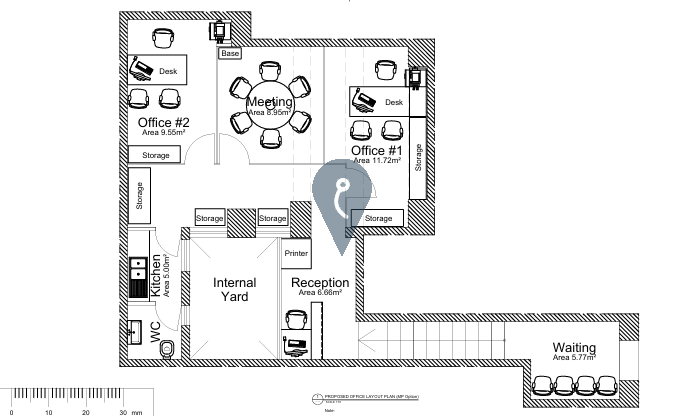
New Office for Sale in Valletta - 50sqm with Internal Yard

This newly listed office space, located in the heart of historic Valletta, offers a unique opportunity for businesses looking to establish themselves in one of Malta's most iconic locations.

Spanning approximately 50sqm, this versatile office features a practical, well-designed layout that allows for both private workspaces and open-plan arrangements.

One of its standout features is the private internal yard, offering a serene outdoor space that’s perfect for breaks, meetings, or a touch of greenery in the urban setting.

This is an excellent opportunity for entrepreneurs, startups, or companies seeking a unique and prime location to base their operations.

You might also like