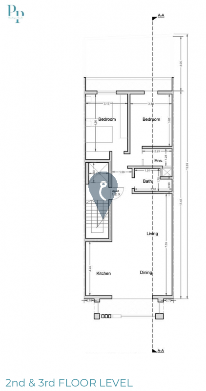
ST JULIAN'S - Located in the heart of St Julian's, one of Malta’s most sought-after areas, this prestigious new development offers a selection of stylish two-bedroom maisonettes and apartments, as well as a unique one-bedroom penthouse. Designed with modern living in mind, each unit blends comfort and convenience in a prime location close to all amenities, entertainment, and the waterfront. Optional garages are available at €75,000 each, providing added value and practicality. An exceptional opportunity for both homeowners and investors.

