Located in the peaceful, sought-after town of Munxar, this beautifully restored House of Character is a true gem, offering a perfect blend of traditional charm and modern comforts. Retaining many original features, this home is finished to the highest standards, making it an ideal family home.
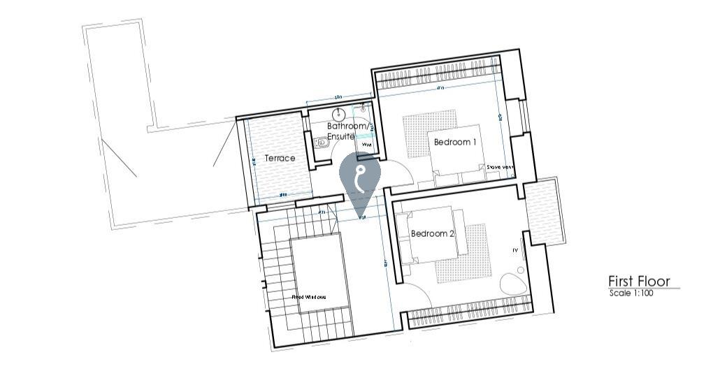
This beautifully restored home in the heart of Munxar Town Centre offers a perfect blend of traditional charm and modern comfort. Featuring two spacious bedrooms, two modern bathrooms, a fully equipped kitchen, a dining room, and a living room, the property boasts high ceilings, original wooden beams, and a stunning staircase that highlights its character. Restored floor tiles and well-lit, airy interiors enhance its warm and inviting atmosphere. Outdoor spaces include a backyard, a terrace, and a balcony with breathtaking country views, ideal for relaxation and entertaining. Located in a quiet yet central area, this furnished home is move-in ready and provides the perfect balance of tranquility and convenience.
This property is perfect for those seeking a tranquil yet convenient lifestyle, with proximity to local amenities while enjoying the peacefulness of a traditional Maltese village. The house also boasts spectacular country views from the balcony, creating a serene atmosphere throughout.
Ideal for families or those who appreciate both modern living and classic character, this property must be seen to be fully appreciated. UCA


