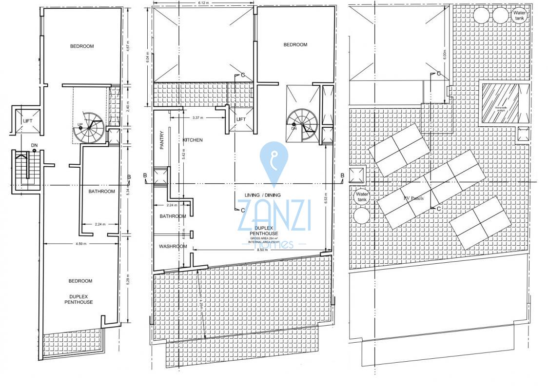
MARSAXLOKK- New on the market is this designer-finished and furnished duplex penthouse with ODZ and Sea Views, and lift access directly to your Open Plan. On the lower level, one can find a spacious master bedroom with a large ensuite with a bath and a shower & a front balcony, and another double bedroom with an ensuite. On the Upper-floor one finds a spacious and bright Open Plan Kitchen/Dining/Living, pantry, main bathroom, washroom/boxroom, and a spare bedroom which currently is an office room and a spacious terrace with amazing ODZ views. Both sofas in the living room and the office room are sofa beds.
Additional to the terrace is a roof terrace which is accessible from the terrace itself. The roof terrace is approx 100 sqm and has reinforcements for a splash pool, jacuzzi, or solar panels. This property is being sold designer furnished and there's an optional eight-car garage in the same block at an additional price. The property is all insulated including ceilings, fully Airconditioned, apertures are all double glazing, includes Airspace and it is Freehold.
205 sqm - Internal
75 sqm - Terrace
100sqm - Roof Terrace
