: 4
:
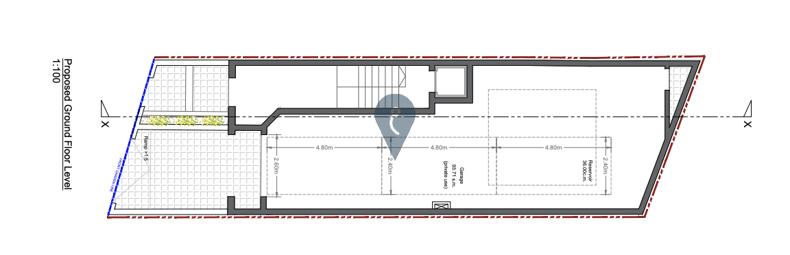
: Msida
Garage
Ground Floor
Shell Form
Freehold
MSIDA - Four-car garage being offered in a shell form state with the option to be finished. FREEHOLD.

