: 2
: 2
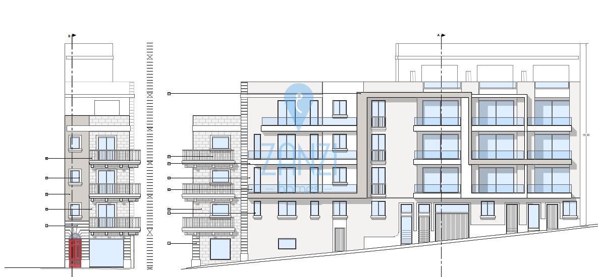
: Burmarrad
Burmarrad -
Permits are already in hand
Completion Date; in process
Externally fully finished and internally shell


